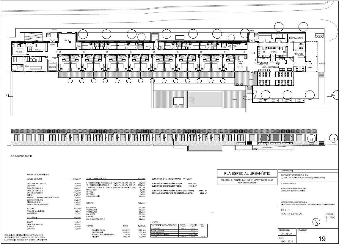
L'Hotel té una capacitat de 37 places, repartides en 16 habitacions dobles i 5 habitacions individuals. Disposa de cuina, menjador-restaurant, sales comuns i una zona de gimnàs-spa amb els corresponents vestidors.
L'Alberg té una capacitat de 66 places, 50 de les quals es concentren en un edifici de dormitoris i les 16 restants es reparteixen en dos masos que poden allotjar grups o famílies de manera semi-autònoma. Compta amb cuina, menjador i sales d’activitats per a grups així com una zona esportiva exterior amb un petit edifici de vestidors per al personal.
Enllaç a la pàgina oficial: www.vilarriudebaix.com









